Project Type: Residential

Scope: Concept Design & Visualisation

Status: Concept

Location: Skhawini Richards Bay | KZN | South Africa

Project hero image

Plans & Sections

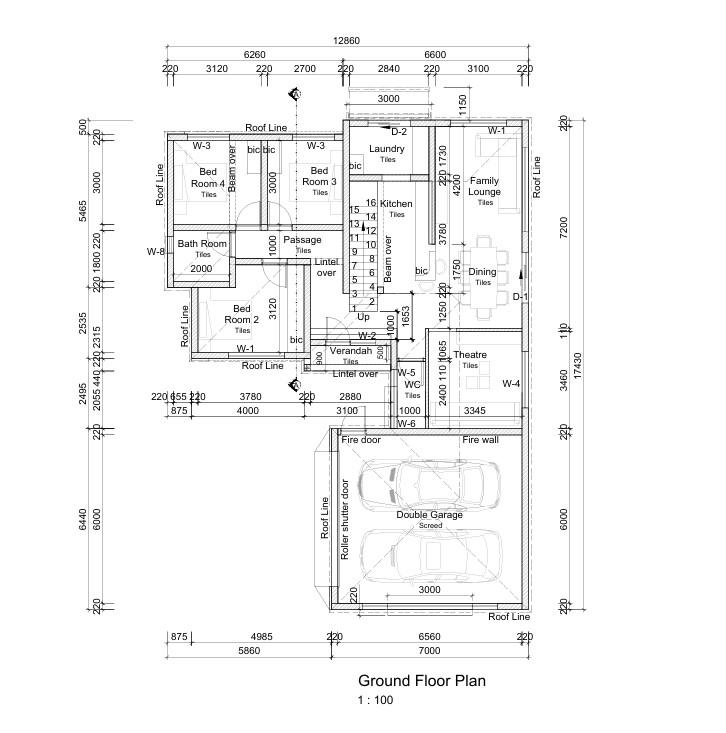
Ground floor architectural plan layout
Ground Floor Plan
Section A-A
Section A–A
North elevation
South Elevation

The ground floor plan illustrates the primary spatial organisation and circulation logic of the building. Upper-level accommodation is arranged as a private zone, stacked above and informed by the same structural and modular strategy.

Renders

Morden double-storey residential house with glazed living area
Morden double-storey residential house with glazed living area